Mersey Road, Cheltenham - Sold Subject to Contract Guide Price £240,000




This substantial semi is situated on the outskirts of Cheltenham and is offered to the market with vacant possession and NO ONWARD CHAIN!!

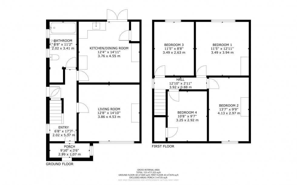
Given the size and the asking price, this certainly would be an affordable four bedroom house and offers great potential to add more value to the property also.

Outside, there is a driveway to the front of the house and then substantial rear gardens.

Inside, the useful porch leads into an entrance hall, there is then a lounge across the front of the house and a kitchen diner across the rear, the bathroom is also downstairs. Upstairs, there are four bedrooms, all of which, you would fit a double in!!

In summary, a house which boasts great value for money, with no chain... call de Mel Property now for your appointment to view.
  • No Onward Chain
  • Four Bedrooms
  • Kitchen Diner
  • Affordable Four Bedroom House
  • Driveway
  • Large Garden
  • Potential to Add Value
Floorplan for Mersey Road, Cheltenham