COMING SOON, Townsend Street, Cheltenham, Gloucestershire, GL51 - For Sale From £315,000




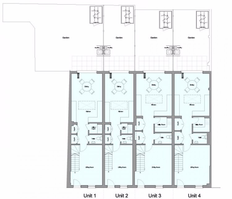
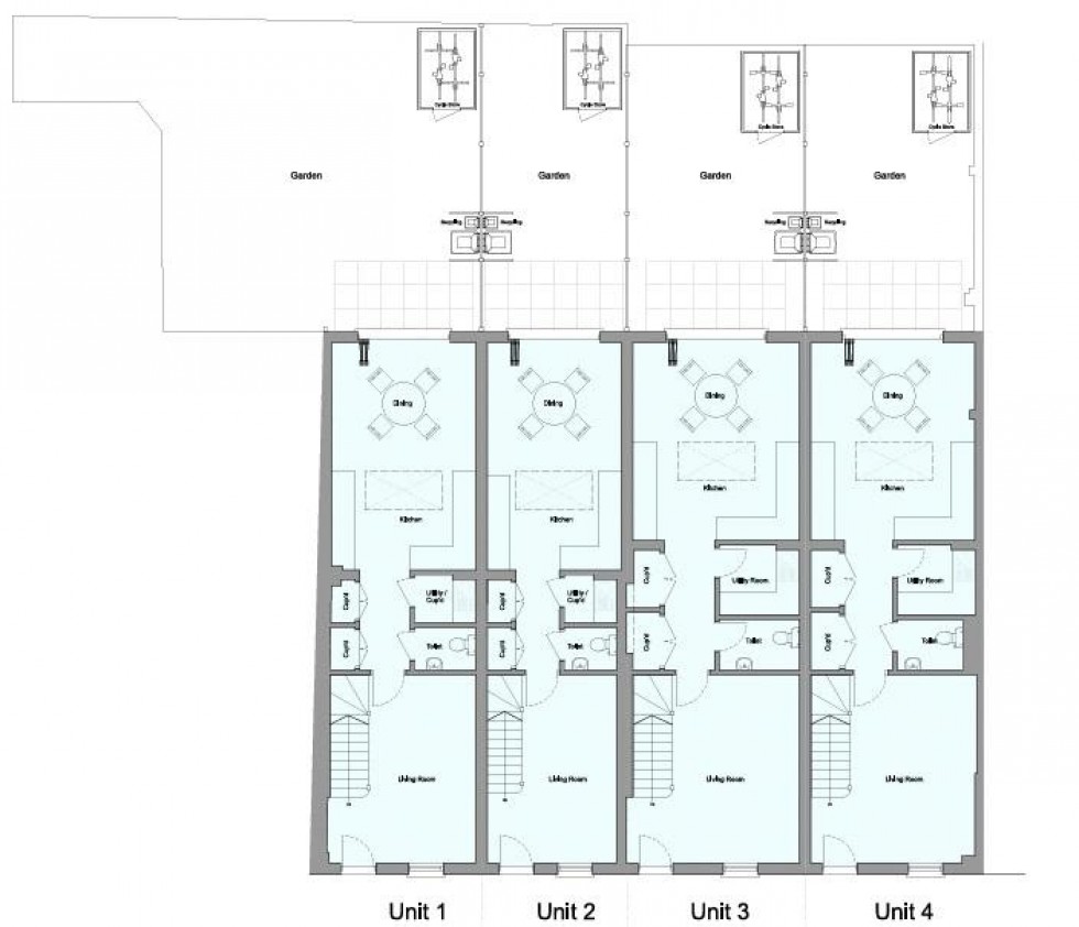
***EXCLUSIVE DEVEOPMENT OF FOUR TERRACED HOUSES***

This is the first opportunity to book a site visit, to view this development of four homes.

Built by highly regarded local builders, there are two different house types.

Get in touch with de Mel Property to arrange to visit the site which is now in the final stages.

Agents Note - *Finish may vary from these architects drawings.
  • Exclusive Development of just Four Houses
  • 10 Year Guarantee
  • Walking Distance to Town Centre
  • Brand New Houses
  • Top Specification Finish
Floorplan for COMING SOON, Townsend Street, Cheltenham, Gloucestershire, GL51 Floorplan for COMING SOON, Townsend Street, Cheltenham, Gloucestershire, GL51