Plot at Albany Street, High Street, Gloucester, GL1 4SP - For Sale £75,000




***BUILDING PLOT WITH PLANNING PERMISSION***

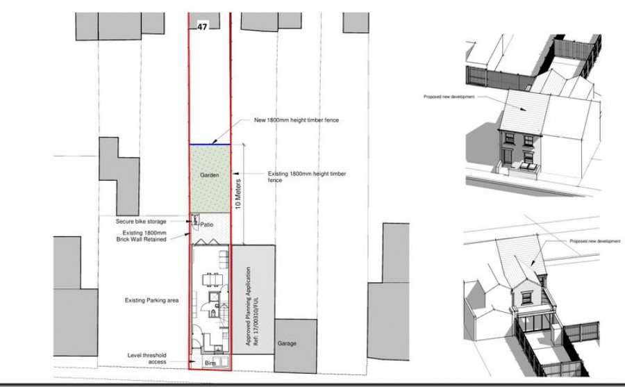
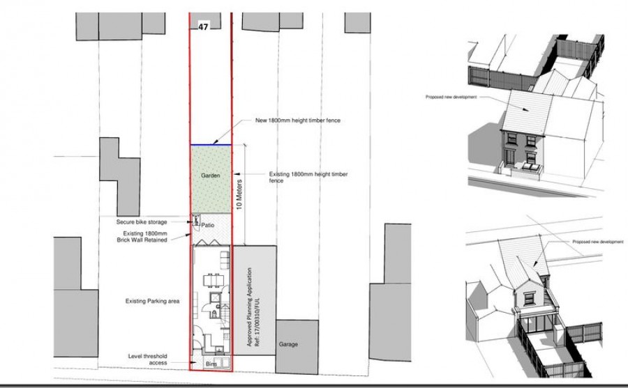
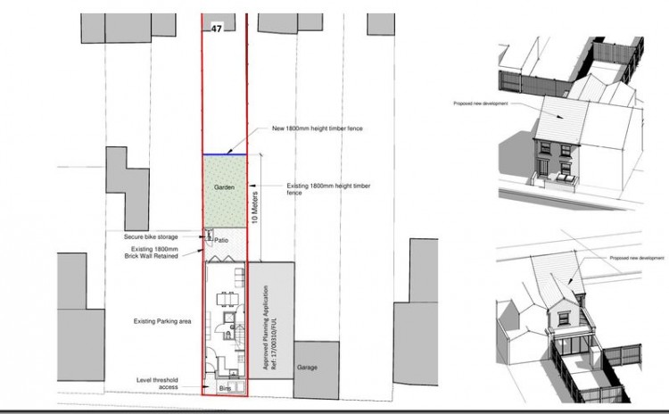
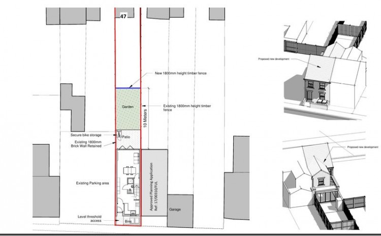
This plot of land was previously the garden for a property on High Street.

Facing Albany Street, planning is granted for a contemporary, two bedroom detached dwelling with parking and garden.

Call de Mel Property for further information.
  • Planning Application Number 24/00810/FUL
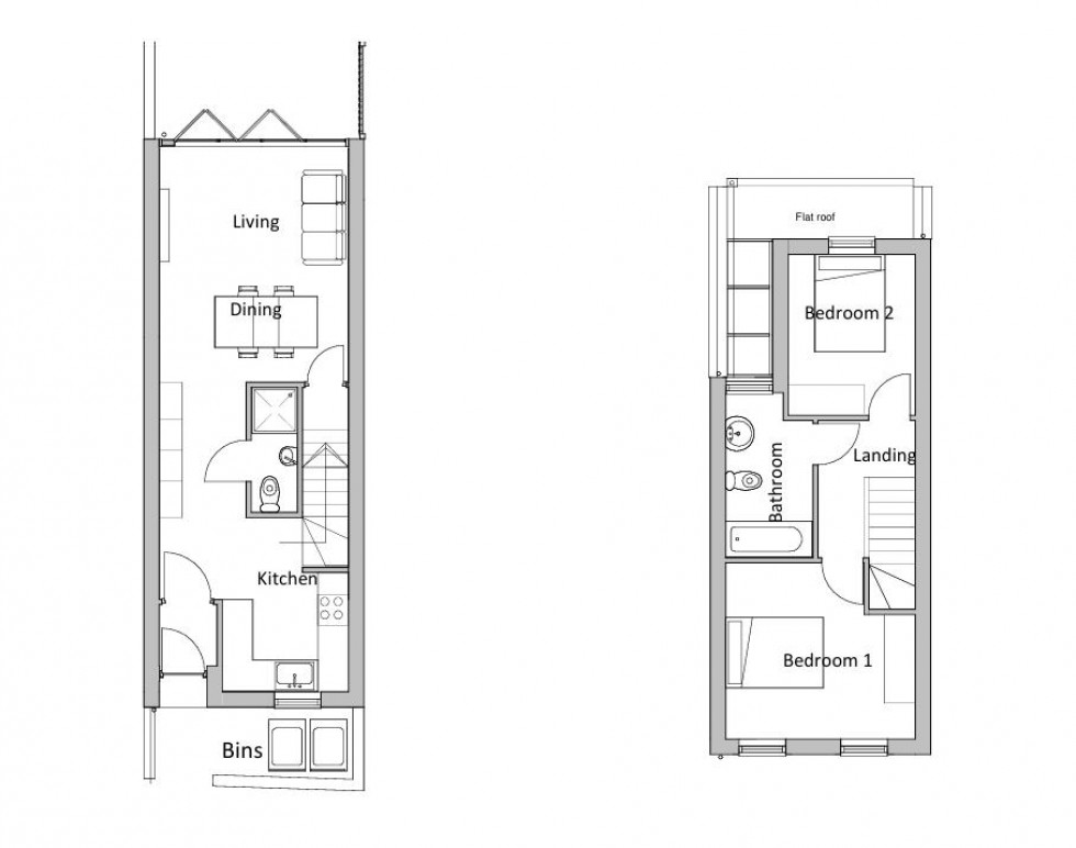
  • Permission Granted for Two Bedroom Detached House
Floorplan for Plot at Albany Street, High Street, Gloucester, GL1 4SP